Residential Building
Residential Building in the Old Town of Heraklion
Location
Typology
Status
Year of Completion
Residential Building in the Old Town of Heraklion
Location
Typology
Status
Year of Completion
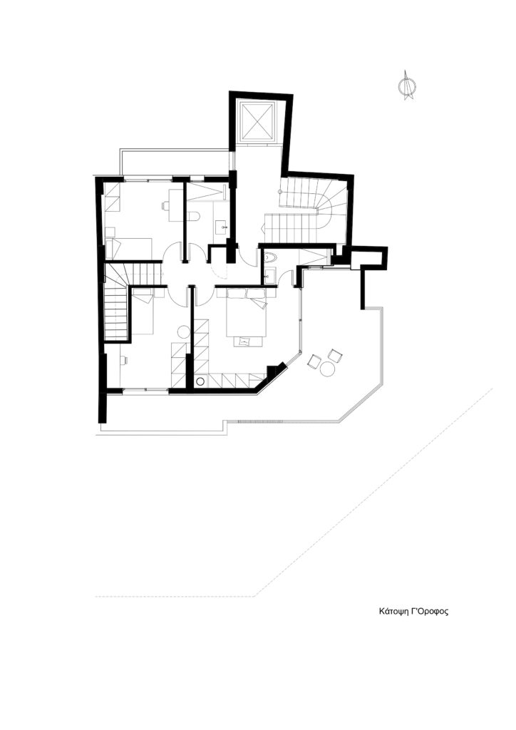
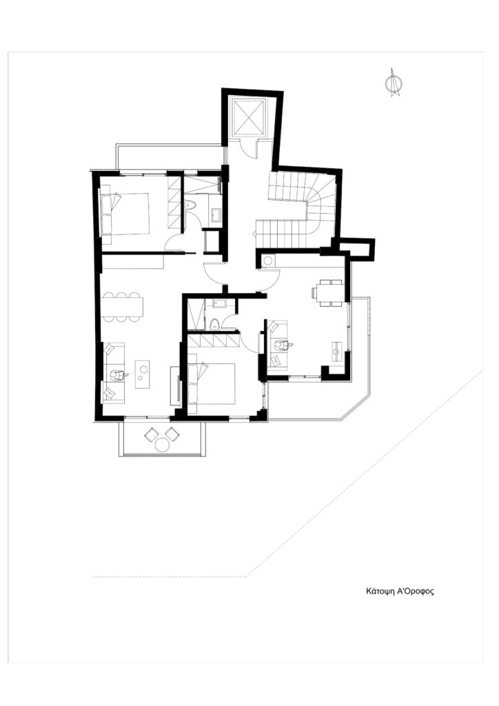
This new residential building in Heraklion, Crete, presents a contemporary architectural approach to urban living, combining high aesthetics, functionality, and sustainability. The design aims to create a structure that integrates harmoniously into the urban fabric while offering high-quality, comfortable, and functional living spaces to its residents.
The architectural composition unfolds through clean geometric forms and a dynamic interplay between voids and solids. Bold projections, spacious balconies with transparent glass balustrades, and the interaction of light and shadow shape a lively and flexible volume, creating a sense of openness and visual continuity.
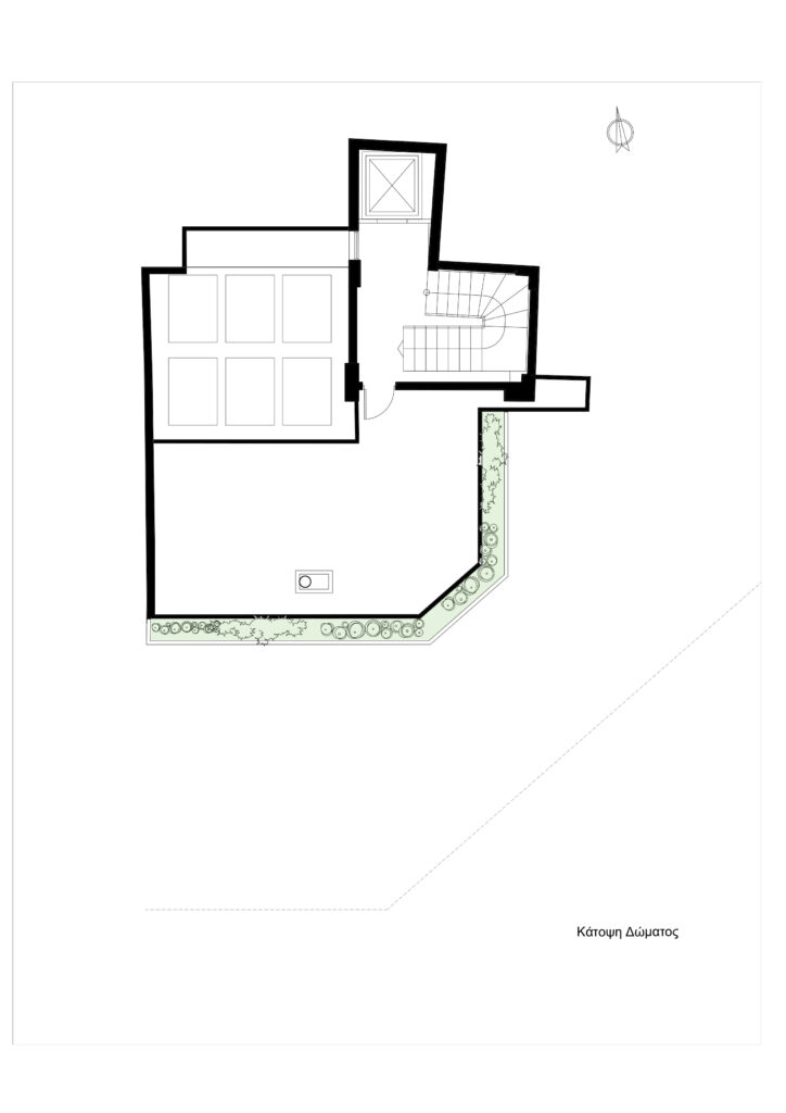
Special emphasis was placed on the use of natural materials and warm earthy tones. Wood cladding, both vertical and horizontal, combined with integrated green elements such as climbing plants, brings nature into the very structure of the building, adding warmth and character. The planted rooftop acts as a private urban refuge, offering unobstructed views and enhancing the building’s microclimate.
At ground level, careful landscape design and discreet entrances ensure residents’ privacy while reinforcing the building’s seamless integration into its surroundings.
Designed according to the principles of bioclimatic architecture, the building benefits from optimal orientation and cross-ventilation, achieving abundant natural light and air circulation throughout, and significantly reducing energy consumption.
















