Computer Store
Architectural Design and Interior Concept
Location
Typology
Status
Year of Completion
Residence, Heraklion Crete
Location
Typology
Status
Year of Completion
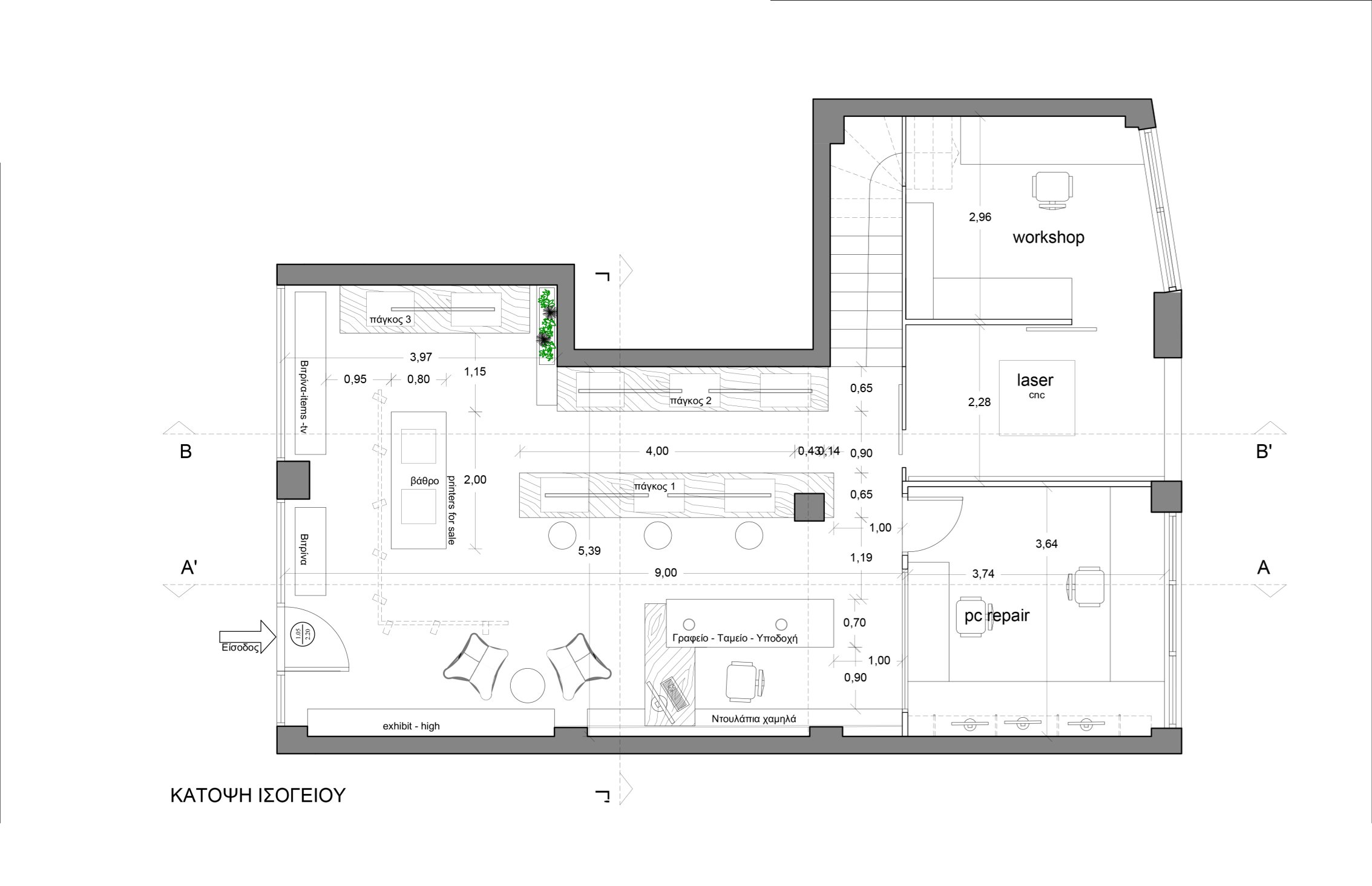
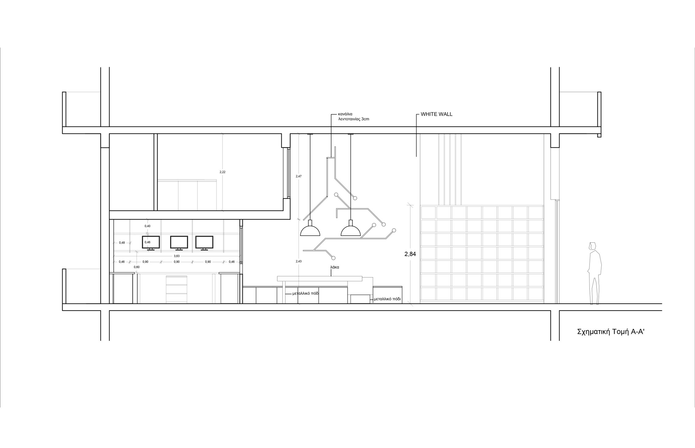
For this project, our architectural team was tasked with designing a modern, technology-focused space dedicated to electronics repair and 3D printing services. The goal was to create an environment that conveys precision, innovation, and high aesthetics, reflecting the company’s philosophy centered around technology and creativity.
The design is based on clean lines, modern materials, and intelligent lighting management. Ergonomic workbenches with integrated LED lighting, subtle yet impactful wall details, and a material palette combining wood and metal create a friendly, functional atmosphere that is closely connected to contemporary technology.
The open-plan layout allows for smooth circulation and clear visibility across activities, while strategically placed greenery and custom-designed furniture add warmth and character to the space.
The storefront, minimalistic yet striking, incorporates graphic elements of the brand identity, immediately communicating the nature of the business to passersby.













