Agia Pelagia
“Whispering Rocks : A Dialogue Between Architecture and Nature”
Preserving the rocky terrain as the centerpiece, the design integrates seamlessly with natural paths and contours. Above-ground and subterranean elements harmonize with the landscape, ensuring minimal disruption. Using stone, wood, and iron, the architecture fosters a deep connection to nature.
Design Philosophy
The rocky section is the defining characteristic of the site and serves as the foundation for the design approach. A primary design consideration is the decision to leave the rocky area undisturbed, preserving its natural state and ensuring it becomes a central feature of the visitor experience. Although the rocky section constitutes half of the buildable land, no buildings will be placed within it. Instead, the architectural composition interacts delicately with the edges of the rock, integrating with existing natural paths and maintaining a sense of harmony with the landscape.
The design establishes a dialogue with the terrain, shaping spaces that enhance the natural setting rather than overpowering it. The rocky levels are subtly transformed into rest areas, offering visitors serene moments of relaxation while maintaining the site’s untouched character.
Functional Organization
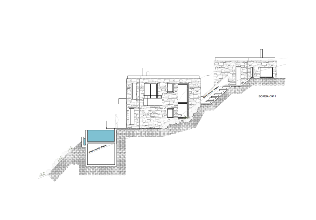
The architectural design is divided into two main parts. The southern part, located above ground, features small volumes that are freely arranged and scattered across the rocky terrain. These volumes are carefully positioned to preserve the natural contours of the site while blending with its organic layout.
The northern part is subterranean, designed to integrate seamlessly with the landscape. This underground section ensures a minimal visual and physical footprint, further preserving the site’s natural integrity. The organization of spaces follows axes that connect to existing natural routes, creating a fluid interaction between the built environment and the surrounding landscape.
Material Palette
The material palette reinforces the connection between architecture and nature, emphasizing elements that reflect the site’s raw beauty. Stone is utilized to echo the rocky terrain, creating a seamless transition between built and natural elements. Wood introduces warmth and texture, complementing the ruggedness of the stone, while iron provides durability and a subtle industrial character that blends with the earthy tones of the site.
Together, these materials, combined with the integration of natural rocks into outdoor spaces, foster a sense of unity with the landscape. The design allows visitors to feel deeply connected to the surrounding environment, enhancing their experience of the site’s natural beauty.

















