Contemporary Residence
Residence, Heraklion Crete
Location
Typology
Status
Year of Completion
Residence, Heraklion Crete
Location
Typology
Status
Year of Completion
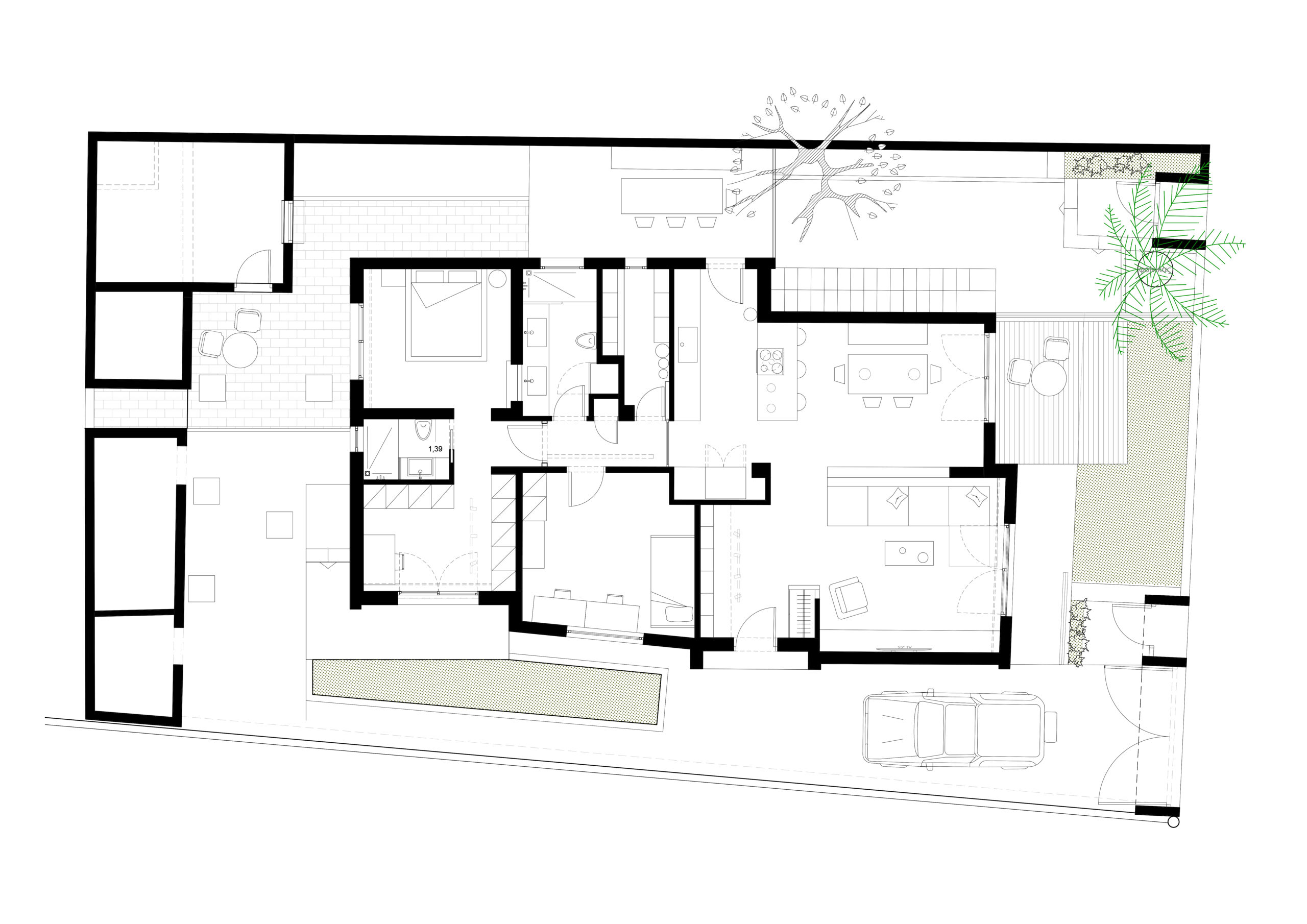
The project involved the redesign of an urban apartment in Heraklion, Crete, with the aim of creating a contemporary, warm, and functional living space. The design approach was based on a composition of clean lines, natural materials, and soft color tones, enhancing a sense of comfort and tranquility.
The layout follows an open-plan logic, seamlessly integrating the living room, dining area, and kitchen into a unified spatial flow. The use of wood on the flooring, selected ceiling elements, and furniture details introduces a feeling of continuity and natural warmth. Large openings allow natural light to flow unobstructed throughout the apartment, highlighting the simplicity of the design.
The kitchen plays a central role in the overall concept, designed with modern lines and practical solutions, incorporating a central island that functions both as a workspace and a gathering point.
Special emphasis was placed on integrating hidden storage solutions, maintaining the clarity and harmony of the interior surfaces. Carefully selected, high-quality and durable materials enhance the functionality of the space and ensure long-term resilience without compromising aesthetics.
The design strikes a balance between contemporary elegance and a welcoming atmosphere, offering a living environment that perfectly supports everyday life, in harmony with the Mediterranean character of Heraklion.












